¡ Año nuevo, nuevos proyectos !

Croquis despatx.png

Año nuevo, nuevas ilusiones, nuevas perspectivas laborales o personales… Este año nuevo empieza diseñando tu futuro proyecto. Arquitecura Castell os ayudará en todas las fases del proyecto: Diseño, trámites de licencias, avaluación económica, redacción de proyecto, ejecución de obra … etc. para que este 2019 puedas empezar a cumplir tus expectativas.

Proyecto reforma interior “mini-vivienda”

A continuación, se muestra el estado actual de una pequeña vivienda en la Planta Ático  situada en una de las calles del Distrito de Ciutat Vella de Barcelona con tan sólo una superficie útil de 28 m2.

Web planol Sant Pere Actual
Planta del estado actual de la vivienda

Cuenta con una sala de estar-comedor muy estrecha (de 2,10m, y por lo tanto no cumple con los requisitos mínimos de habitabilidad según el Annex 2 del Decret 141/2012 de la Generalitat de Catalunya) y 8,60 m2 con una escasa ventilación e iluminación. Además, el inodoro da directamente a la sala principal. Tanto como el recibidor, la cocina y el dormitorio son salas desproporcionadas en relación a las dimensiones totales de la vivienda.

Se propone una redistribución total interior de toda la vivienda, conservando los puntos de desagüe. Se reduce el recibidor que conduce a la nueva Sala de estar-comedor de 11,43 m2 (3 m2 más grande que la anterior y de 2,95m de anchura) situada al lado de la gran terraza. Desde la esta sala se puede acceder al dormitorio y a la cocina. Además, se unifica el baño en una sola pieza resguardada de la sala de estar.

Web planol Sant Pere reforma
Plano de la propuesta de reforma interior
Render 1
Visualización renderizada de la reforma del proyecto.

Proyecto Casa de Les Fonts

Perspectiva arquitectònica 1
Croquis arquitectónico de la vista general de la vivienda.

Se plantea un edificio compuesto por el solapamiento desencajado de tres grandes cubos que se adaptan a la gran pendiente que presenta el terreno.

Perspectiva arquitectònica 2
Croquis arquitectónico de la perspectiva de la vivienda.

Cada cubo tiene asociado una plataforma de terreno. Los distintos encajes del los cubos ofrecen distintos porches. Además los huecos están orientados de Sur-este a Sur-oeste y a las vistas principales.

 

PP

La Planta Piso consta de tres dormitorios y dos cuartos de baño.

PB

La Planta Baja consta de un salón-comedor-cocina, un baño y un dormitorio.

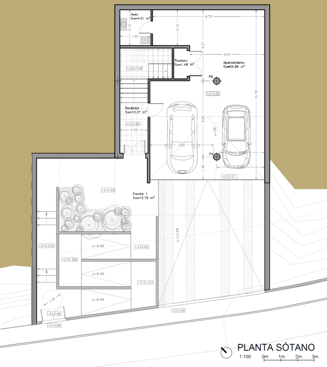
PS-1

La vivienda consta de un aparcamiento para dos vehículos y con un itinerario accesible desde la vía pública.

 

Calcular bien antes de empezar

Porque ¿quién de vosotros, queriendo edificar una torre, no se sienta primero y calcula los gastos, a ver si tiene lo que necesita para acabarla? No sea que después que haya puesto el cimiento, y no pueda acabarla , todos los que lo vean comiencen a hacer burla de él diciendo:

-Este hombre comenzó a edificar, y no pudo acabar.

Evangelio según Lucas 14: 28-30

pressupost

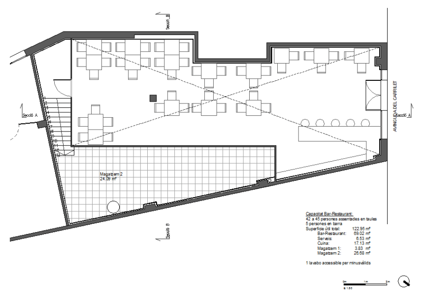
Anteproyecto Bar-Restaurante en Barcelona

General 3

A continuación se muestra el anteproyecto para la realización de un pequeño Bar-Restaurante en Barcelona en un local vacío.

General 2

 

Como se observa en la sección fugada consta de una gran sala que utiliza casi toda la longitud del local. Se incorpora una superficie de altillo como zona de almacenaje.

Cenital 2

Las vistas interiores nos ayudan a darnos una idea aproximada de las dimensiones y proporciones del proyecto propuesto.

Vista 1

Vista 2

Además el local cuenta con dos servicios, uno de los cuales es para minusválidos.

Croquis 1Croquis 2