
Con la llegada del frío la calefacción es imprescindible en cualquier hogar. Pero, ¿qué tipo de sistema de calefacción se puede usar? Caldera de gas, bomba de calor, estufas eléctricas, calefacción de gasóleo… etc, y ¿por qué no usar una chimenea de leña? A continuación se estudiará la viabilidad, ventajas e inconvenientes de de este tipo de calefacción.
Utilizar la combustión de leña para calentar una vivienda supone utilizar la energía más limpia (menores emisiones de dióxido de carbono respecto el gas natural, electricidad o gasóleo). Es la energía más respetuosa con el medio ambiente.

Además, para la combustión no sólo es necesario madera, sino que se puede emplear otro tipo de residuos que usualmente se desprecian como residuos vegetales (cáscaras de frutos, hojas, marro de café, huesos de aceitunas,… etc) así como otros residuos: maderas no aptas para el consumo, papeles, cartones… etc fomentando la reutilización y reciclaje de residuos urbanos.
Otra ventaja importante es que las estufas de leña no precisan mantenimiento económico y tienen una vida útil prácticamente interminable respecto a las calderas de gas o equipos de bombas de calor que cada año disminuye su rendimiento siendo necesario la sustitución de estos equipos cada 10 ó 15 años (aproximadamente).
¿Cuánta madera se necesita para calentar una vivienda?
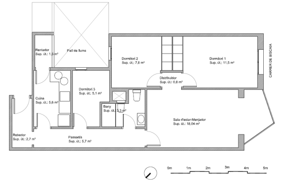
A continuación se estudia la cantidad de madera para calentar una vivienda individual de un bloque de pisos entre medianeras en Barcelona. El piso objeto del estudio tiene una superficie útil de unos 60 m2 y está compuesto por 3 dormitorios, una sala, una cocina, un baño y un recibidor.
El caso que se muestra a continuación es un ejemplo. Cada vivienda requiere su estudio particular puesto que la ubicación geográfica, orientación, tipos de cerramientos, tipología edificatoria distribución… etc. altera los parámetros de cálculo.

| Superficie útil vivienda | 60.54 m2 |
| Demanda de calefacción (*) | 103,1 kWh / m2 año |
| Energía de calefacción necesaria | 6.242 kWh / año |
| Rendimiento combustión de la leña | 78 % |
| Energía de calefacción consumida | 8.002 kWh / año |
| Poder Calórico Inferior (PCI) leña (**) | 4,41 kWh / Kg |
| Cantidad de madera necesaria | 1.815 Kg madera /año |
| Volumen de madera necesaria | 4,45 m3 madera / año |
Por lo tanto, para satisfacer la demanda de calefacción anual de dicha vivienda serán necesarios 1.815 Kg de madera (4,45 m3). El coste total puede ascender a 250 € aproximadamente.

Inconvenientes de la combustión de leña.
Como principales inconvenientes de la combustión de leña se debe tener presente que se requiere de un alto espacio de almacenaje de combustible, así como tener buena accesibilidad. Se deben retirar y limpiar manualmente las cenizas de la chimenea. También se requiere de un cierto tiempo, práctica y conocimiento para la ignición de la madera.
_ _ _ _ _ _ _ _ _ _ _
(*) El valor de la demanda de calefacción ha sido obtenido a partir del programa de cálculo CE3X (herramienta de certificación del Ministerio de Fomento del Reino de España). Este valor varía según la ubicación geográfica, tipología edificatoria, tipo de cerramientos, carpinterías, distribución… etc. Cada vivienda tiene un valor característico.
(**) Poder Calórico Inferior (PCI) de la leña y ramas según IDAE









